Can Vermut
Apartment
Madrid, Spain
2023
Can Vermut: (Def.) From Catalan: Can, “house of”; vermut “aperitif”

In Madrid, the ritual of el vermut — that leisurely moment of pause and conversation before lunch — is a cherished part of the city’s social fabric. Rooted in everyday life, it reflects a culture that values gathering, conversation, and the simple joy of being together.

 

Since the pandemic of 2020, people have been forced to spend more time at home, resulting in new ways of inhabiting domestic spaces. During this time, many individuals sought to create a home that could also serve as a meeting place for their friends and relatives. Can Vermut is one such home that was designed with this duality in mind.

(Fig. 01) Here, Richard McGuire, 1989.

Located in the heart of the city, the apartment was reimagined for a young family seeking a space that could host both intimacy and celebration. The design is centered around a generous communal room that brings together kitchen, dining, and living — the beating heart of the home.

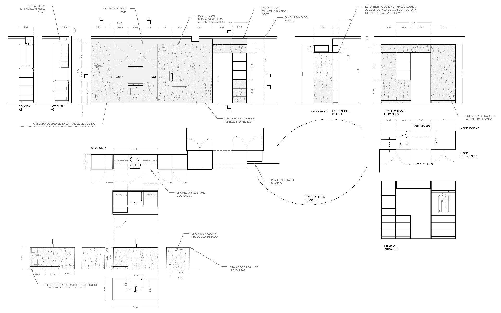
To make this possible, private spaces are minimized and tucked behind a habitable wall: a continuous service band that integrates storage, bathrooms, and circulation. This architectural strategy allows the day-to-day life of the family to flow toward the shared space, emphasizing encounter over isolation.

The materials are warm and textured, the layout intuitive and open. Walls become furniture; transitions blur; thresholds invite movement. Rather than decorating space, the project organizes life — shaping a home where gathering is easy and moments of pause are always welcome.

Client
Private

Status
Built

Design dates
2023: Design and Construction

Program
Apartment

Team
Toni Cañellas, Santiago Gómez, Javier Martinez y Silvia Muñoz

Photography / Images
equipo.exe

Budget
70 K €

Gross area
70 m2