Light Line
Patio House
Madrid, Spain
2024
(Fig. 01) Liminal space between urban and natural infrastructures. (Fig. 02) Aerial view of the Shazdeh Persian Garden in Mahan, Kerman.

 

A Garden with Walls. The house aims to create a personal sense of place — an oasis within an urban area still under development. Inspired by the typology of the walled garden See AlsoFig. 2 , it folds inward, seeking to construct an interior world.

 

(Fig. 03) Figure from the book Choreutics by Rudolf von Laban, 1966. (Fig. 4) Porch of a house in the residential area of Alcudia, Mallorca, 1984. Illustration by Alejandro de la Sota.

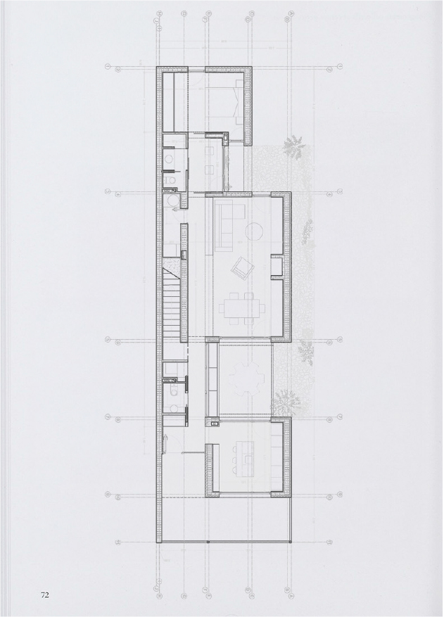
This project emerges from the site’s strict geometric constraints: a rectangular plot measuring 10 by 40 meters, with its short sides oriented north–south, shaped by the urban, environmental, and regulatory conditions of a village in the Sierra de Guadarrama, on the metropolitan periphery of Madrid. The architectural response is neither loud nor performative. It is measured, restrained — a domestic architecture that chooses to protect rather than expose, creating a private world within its walls. Here, privacy and climatic comfort become essential needs.

At the core of the design lies a simple premise: to transform constraints into spatial richness. The program is organized along a longitudinal band of service spaces, to which independent volumes are attached. These volumes are spaced apart, generating patios that maximize natural light and activate a porous architecture — one that breathes, filters, protects, and connects.

Mediating between climate and domestic life, the patios act as active voids. Deciduous vegetation naturally regulates thermal comfort — allowing sunlight to enter in winter and filtering it in summer. Japanese ivy, covering the central courtyard, working as a seasonal filter, helps to create microclimates that reduce energy demand, transforming the house into a metabolic device.

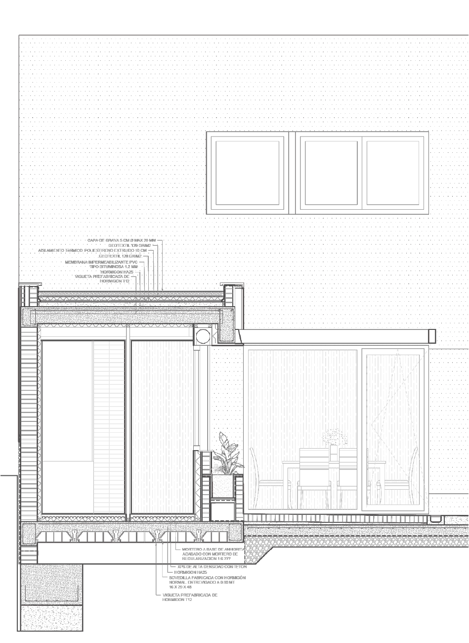
The structure is resolved through load-bearing walls made of thermal clay blocks and unidirectional concrete slabs with ceramic vaults, providing an envelope with high thermal inertia. To reinforce passive performance, an ecological External Thermal Insulation Composite System (ETICS) made of cork is applied, preventing thermal bridges and air infiltration. This system helps retain heat during cold winter nights and dissipate it during hot summer days, while the house opens onto the patios to accelerate cross ventilation and enhance comfort.

Far from equating sustainability with renunciation, the project embraces a conscious hedonism, where comfort, beauty, and domesticity are understood as forms of added value. Architecture becomes a support for a light, uncomplicated private life, where each space is shaped by use, light, and time. The house does not impose itself on the site — it adapts, protects, and simultaneously opens itself to the essential.

Client
Private

Status
In progress

Design dates
2023: Concept Design
2024: Construction Documents
2024: Permit

Program
Detached house

Team
Toni Cañellas, Juán Ginés, Santiago Gómez, Javier Martinez y Silvia Muñoz

Collaborators
Agustín López de Ayala y Javier Martín Merino

Photography / Images
equipo.exe

Budget
350 K €

Gross area
170 m2