Portitxol Hospital
Hospital
Palma, Spain
2025

Located in Palma’s Polígono de Levante district, the project occupies a transitional site between the city’s industrial past, its emerging residential developments, and its redefined eastern boundary. Once a peripheral zone marked by infrastructural fragmentation and underutilized land, the area is now undergoing a significant transformation of its urban landscape.

The expansion of public space, the introduction of new transport infrastructure, and the construction of major facilities such as the Convention Center have collectively reshaped Palma’s coastal edge.

(Fig. 02) From “Modificació del P.G.O.U. en el Sector de Llevant” also known as Busquets Plan —amendment of Palma’s Urban Plan in 2001.

It is within this semi-enclosed block, set behind these infrastructural and symbolic thresholds, that the hospital situates itself—responding to the tension between the metropolitan scale of infrastructure and the intimate scale of care See AlsoSoft Against Sharp .

(Fig. 03) Untitled. (1927) “Cadavre Exquis” by Yves Tanguy, Man Ray, Max Morise, Joan Miró.
(Fig. 04) From “Modificació del P.G.O.U. en el Sector de Llevant” also known as Busquets Plan —amendment of Palma’s Urban Plan in 2001.
(Fig. 05) Comparison of maximum buildable volume vs. final proposed volume.

The project is the result of layered authorship: between urban planners, the developer, the healthcare operator— who will manage and inhabit the building—and a network of technical agents and municipal authorities. Like an architectural cadavre exquis, the hospital carries the imprint of many hands, intentions and agendas.

Within this predefined envelope by urban planing, architecture becomes a space of negotiation—an exercise in mediation between capital, care, and regulation. And perhaps there is yet another layer of authorship: that of the ailing body the hospital is ultimately built to host. That of the machines—imposing spatial, structural, and material constraints to accommodate radiation shielding, magnetic fields, and surgical precision; and that of the ground itself.

(Fig. 05) MRI documentation. Model: Signa Premier XT by GE HealthCare. Equipment layout side and front view with magnetic field.

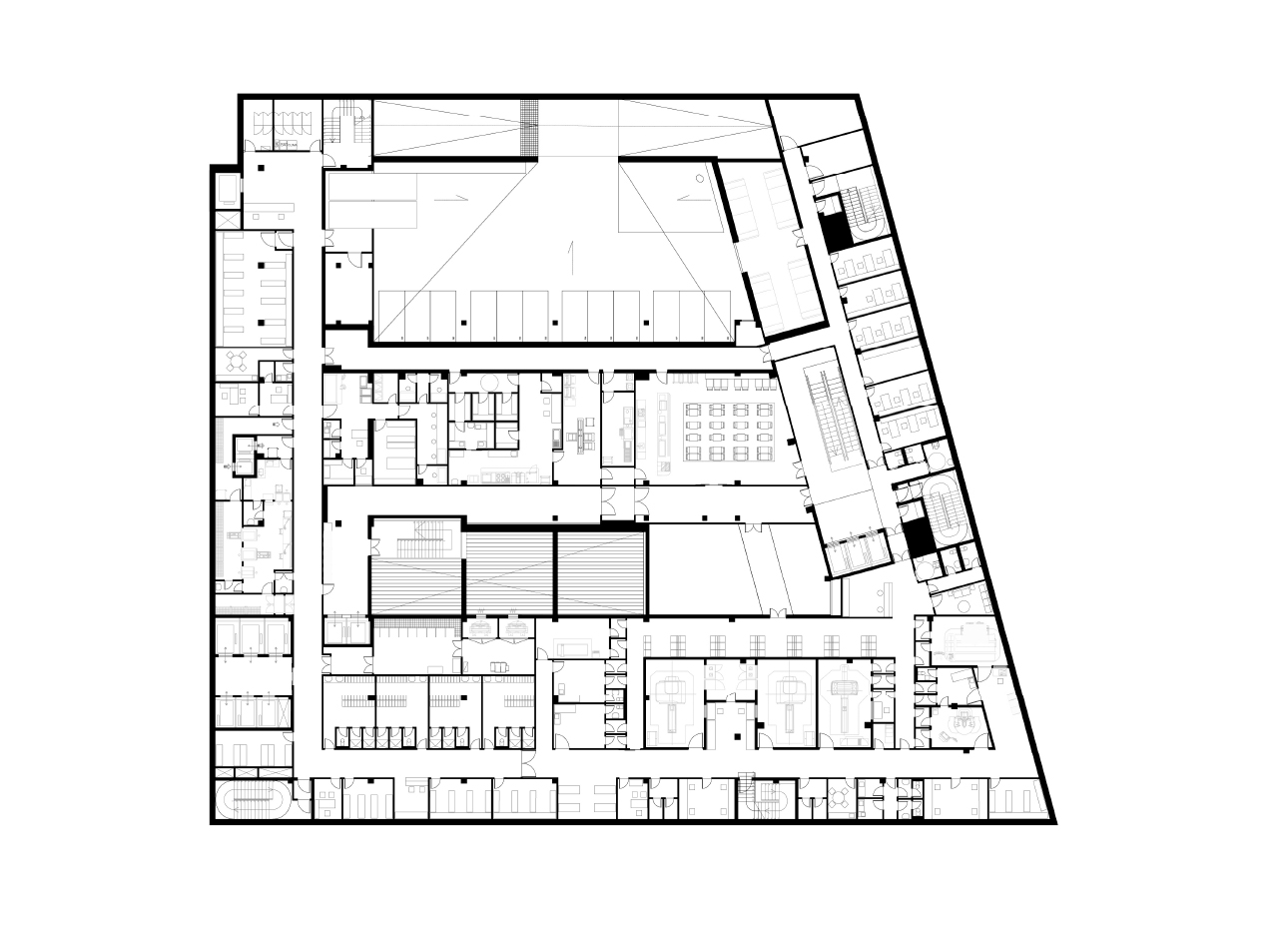
The hospital’s floor plan is the negotiated outcome of all these forces. The functional program was continuously adjusted to fit the urban constraints, through successive rounds of design and dialogue with the client.

The architect’s creative role lies in negotiating constraints with the context—never operating from a blank slate. Each local conflict calls precise responses that reconcile competing demands. It is in these moments that aesthetic sensitivity, attention to the user, and technical ingenuity converge.

The garden, the project’s most programmatically open space, becomes a clear expample: a site of negotiation, a kind of parliament within the void of the block.

The multi-level courtyard design responds to the hospital’s internal logistics—separating flows of people and goods across two levels. At the same time, it reconciles urban planning requirements for permeable ground with geotechnical constraints, such as a high water table just above the second basement level.

Client
Azora Capital

Status
In progress

Design dates
2024: Concept Design
2025: Construction Documents

Program
Hospital

Team
Toni Cañellas, Juan José Arévalo, Silvia Muñoz, Javier Martínez, Bea López-Córtijo & Pedro Lorente

Collaborators
Ana Arévalo

Consultants
ACIX Consultoría Técnica, PONDIO Ingenieros, WALK Architecture & Landscape

Photography / Images
equipo.exe, Ana Arévalo, Play-Time

Budget
60 M €

Gross area
15.200 m2